40 000 000 Р 511 600 $ или 440 600

Информация об помещении

2
Этаж

Состояние и оснащение

Количество этажей
2
Развернуть
Агент
+7 (982) 395-36-25
Начать чат с агентом

Помещение свободного назначения в Курганская область, Курган Заозерный ...

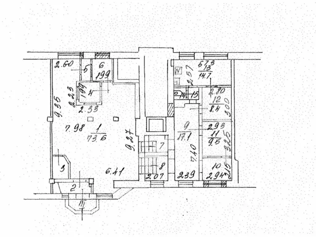
Продается помещение свободного назначения общей площадью 646 м2, расположенного по адресу г. Курган, 2й мкр. д 20В, 2й этаж.Основные характеристики и преимущества объекта:- ВТОРОЙ ЭТАЖ- разделено на 2 помещения под двух арендаторов- мощность подключения 86 кВт- высота потолков 3,2 м- 2 входа с улицы- парковка- система вентиляции и кондиционирования- мужские и женские душевые, с/у- сауна- раздевалки- хороший пешеходный и автомобильный трафик- густонаселенный район, продолжает застраиваться- действующий арендатор на оной половине федеральная сеть FixPrice- в данный момент идет поиск арендатора на вторую половину- прямые договоры на поставку э/э и воды с ресурсоснабжающими организациямиПодходит под торговлю, офис, спортСтоимость продажи Окружающие арендаторы: на первом этаже супермаркет Метрополис , рядом Торговый центр Семейный Магнит , Торговый центр Стрекоза .По всем вопросам можете обращаться к вашему персональному менеджеру:Степан Андреев - Консультант по коммерческой недвижимости.Регион Бизнес НедвижимостьАрт.

Читать полностью
    Позвонить Написать
    40 000 000 Р511 600 $ или 440 600
    Агент
    +7 (982) 395-36-25
    Начать чат с агентом
    Похожие предложения
    Помещение свободного назначения в Москва ул. 9-я Соколиной Горы, 3 ... - Фото 1
    Помещение свободного назначения в Москва ул. 9-я Соколиной Горы, 3 ... - Фото 2
    645608. Предлагаем торговое помещение с сетевым арендатором Красное и Белое, площадью 155 кв. м., расположенное на первом этаже жилого дома. Без комиссии для покупателя.Преимущества объекта:-первая линия 9-й улицы Соколиной горы;-пешая доступность от...
    • 1/9 эт.
    40 000 000 Р
    Агент
    +7 (938) Показать номер
    Посмотреть контакты
    Помещение свободного назначения в Москва пос. Коммунарка, ул. Липовый ... - Фото 1
    Помещение свободного назначения в Москва пос. Коммунарка, ул. Липовый ... - Фото 2
    Арт.Продается напрямую от собственника помещение свободного назначения 121 кв.м. на 1 этаже 16ти этажного жилого дома на первой линии ул. Липовый парк. Помещение с чистовым ремонтом и открытой планировкой, высота потолков 4,5м, витринное остекление,...
    • 1/16 эт.
    40 000 000 Р
    Агент
    +7 (916) Показать номер
    Посмотреть контакты
    Помещение свободного назначения в Воронежская область, Воронеж ул. ... - Фото 1
    Помещение свободного назначения в Воронежская область, Воронеж ул. ... - Фото 2
    Прометей жилой дом бизнес-класса в историческом центре города. Дом с оригинальной архитектурой и строгим характером композиционно состоит из четырех секций переменной этажности от 5 до 12 этажей. Большой выбор планировочных решений: от классики до...
    • 1/12 эт.
    39 267 200 Р
    Агент
    +7 (980) Показать номер
    Посмотреть контакты
    Помещение свободного назначения в Крым, Симферополь просп. Александра ... - Фото 1
    Помещение свободного назначения в Крым, Симферополь просп. Александра ... - Фото 2
    Компания ЭТАЖИ предлагает вашему вниманию продажу коммерческого помещения свободного назначения в самом востребованном и популярном микрорайоне Крымская Роза , ЖК Инжир Помещение в сданном доме общей площадью 148.3 м.кв. под Ваш эксклюзивный ремонт...
    • 1/13 эт.
    40 000 000 Р
    Агент
    +7 (918) Показать номер
    Посмотреть контакты
    Помещение свободного назначения в Крым, Ялта ул. Свердлова, 1Б (193 м) - Фото 1
    Помещение свободного назначения в Крым, Ялта ул. Свердлова, 1Б (193 м) - Фото 2
    Продам Нежилое Здание 192,8 кв.м., в Центре Ялты рядом с Морским Вокзалом. Отличный заезд к объекту, участок 0,084 га своя парковка, тупиковый. Работали как водолазная школа с помещениями для отдыха. Коммуникации городские. Собственность юр.лица. Здание...
    • 1/3 эт.
    40 000 000 Р
    Агент
    +7 (918) Показать номер
    Посмотреть контакты

    Не нашли подходящего объявления?

    Оставьте заявку, и наши риэлторы подберут псн в районе Кургана

    (0)