3 600 000 Р 44 240 $ или 38 390

Информация о квартире

61 м2
Площадь
50 м2
Жилая
6 м2
Кухня
3
Комнаты
4
Этаж
5
Этажность
Развернуть
Агент
+7 (961) 571-49-98
Начать чат с агентом

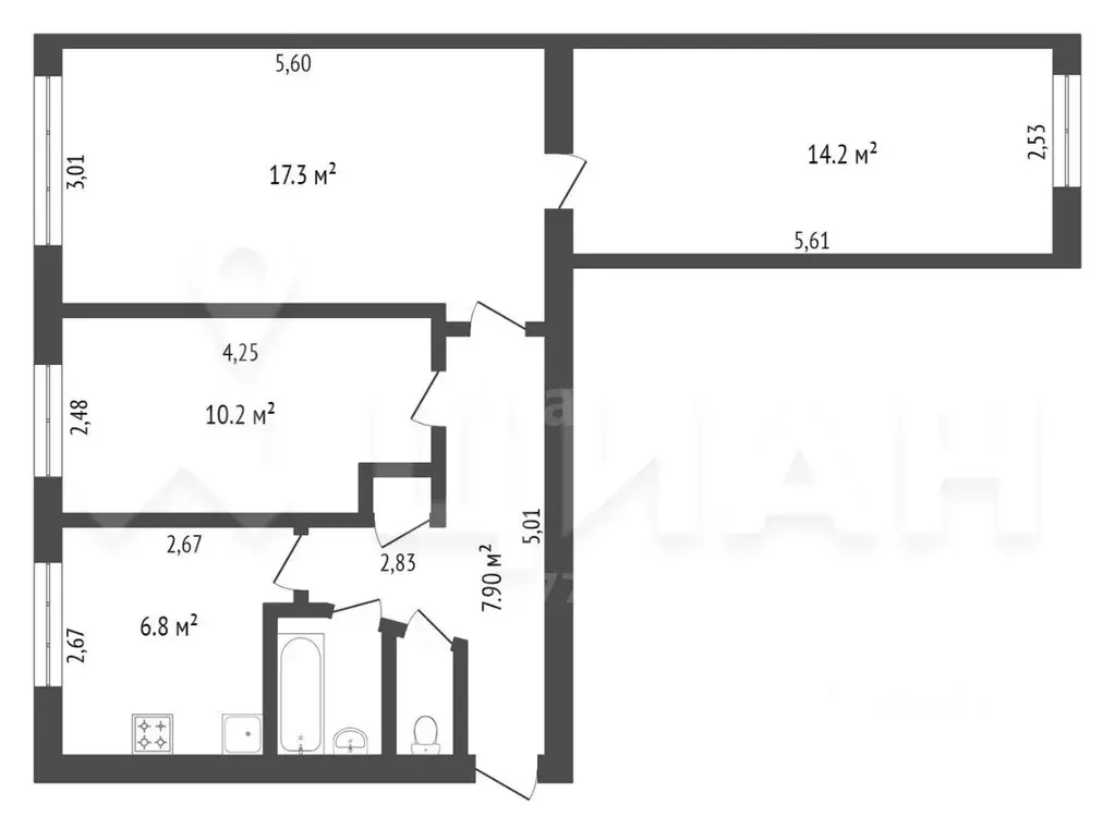
3-комнатная квартира: Шадринск, Красноармейская улица, 66 (61.1 м)

Продается трехкомнатная квартира общей площадью 61,6 кв.м на четвертом этаже пятиэтажного блочного дома по улице Красноармейская. Планировка отличается практичностью: два изолированных помещения и проходная гостиная, что обеспечивает комфортное размещение семьи. Квартира не угловая, с хорошим тепловым и световым режимом благодаря окнам на запад и восток. Ключевое преимущество — ориентация окон одной комнаты, кухни и застекленного балкона в тихий двор, обеспечивающая безопасность для детей и спокойную атмосферу. В квартире установлен раздельный санузел, газовая колонка, домофон, а также все необходимые счетчики учета. Состояние объекта предполагает проведение косметического ремонта, что позволяет новым владельцам сразу реализовать собственные дизайнерские решения без необходимости перепланировки или устранения чужих недочетов. Дом содержится в образцовом порядке: подъезд и придомовая территория ухожены, соседи доброжелательны. Локация является стратегически выгодной — в пешей доступности находятся Лицей №1, школа №2, детская поликлиника, отделение Сбербанка, спортивная и музыкальная школы, а также железнодорожный и автовокзал с развитой сетью общественного транспорта, что делает этот объект идеальным выбором для семей, ценящихазвитую инфраструктуру и транспортную доступность.Звоните, отвечу на интересующие вас вопросы Код пользователя: 81894Номер в базе:

Читать полностью

    Для того, чтобы купить трехкомнатную квартиру по адресу: Шадринск, ул. Красноармейская, 66, позвоните по телефону +7 (961) 571-49-98. Торопитесь! Объявление №30091619175 о продаже трехкомнатной квартиры опубликовано Вчера.

    Позвонить Написать
    3 600 000 Р44 240 $ или 38 390
    Агент
    +7 (961) 571-49-98
    Начать чат с агентом
    Похожие предложения
    3-к кв. Курганская область, Шадринск Красноармейская ул., 66 (61.1 м) - Фото 1
    3-к кв. Курганская область, Шадринск Красноармейская ул., 66 (61.1 м) - Фото 2
    3-комнатная квартира, общая площадь 61м², кухня 6м²

    Продается трехкомнатная квартира общей площадью 61,6 кв.м на четвертом этаже пятиэтажного блочного дома по улице Красноармейская. Планировка отличается практичностью: два изолированных помещения и проходная гостиная, что обеспечивает комфортное размещение...
    • 61 м²
    • 3-ком
    • 4/5 эт.
    • блочный
    3 600 000 Р
    Агент
    +7 (912) Показать номер
    Посмотреть контакты
    2-к кв. Курганская область, Шадринск ул. Гагарина, 33 (45.4 м) - Фото 1
    2-к кв. Курганская область, Шадринск ул. Гагарина, 33 (45.4 м) - Фото 2
    2-комнатная квартира, общая площадь 45м², жилая 29м², кухня 5м²

    Предлагается к продаже уютная двухкомнатная квартира площадью 45,7 кв.м. на третьем этаже пятиэтажного дома в самом центре города. Квартира в кирпичном доме. Ремонт свежий, чистый, опрятный. Кухонный гарнитур и шкаф-купе остается в подарок. Все необходимое...
    • 45 м²
    • 2-ком
    • 3/5 эт.
    • кирпичный
    3 700 000 Р
    Агент
    +7 (912) Показать номер
    Посмотреть контакты
    2-комнатная квартира: Шадринск, улица Карла Либкнехта, 29 (47.2 м) - Фото 1
    2-комнатная квартира: Шадринск, улица Карла Либкнехта, 29 (47.2 м) - Фото 2
    2-комнатная квартира, общая площадь 47м², жилая 36м², кухня 6м²

    Предлагаем к продаже двухкомнатную благоустроенную квартиру, расположенную на первом этаже пятиэтажного панельного дома по ул. Карла Либкнехта. Входная сейф дверь, пластиковые окна, общая площадь 47,2 кв, кухня 5,9кв. В квартире косметический ремонт,...
    • 47 м²
    • 2-ком
    • 1/5 эт.
    3 500 000 Р
    Агент
    +7 (919) Показать номер
    Посмотреть контакты
    3-к кв. Курганская область, Шадринск ул. Ефремова, 22с1 (47.5 м) - Фото 1
    3-к кв. Курганская область, Шадринск ул. Ефремова, 22с1 (47.5 м) - Фото 2
    3-комнатная квартира, общая площадь 47м², кухня 6м²

    Предлагается к продаже 3-х комнатная квартира на 5-м этаже 5-ти этажного дома в центре города. Общая площадь: 47,5 кв.м. В квартире косметический ремонт. Две спальные комнаты изолированы, проходная только гостиная. Сан. узел совмещён, новый унитаз. В...
    • 47 м²
    • 3-ком
    • 5/5 эт.
    • панельный
    3 600 000 Р
    Агент
    +7 (919) Показать номер
    Посмотреть контакты
    3-к кв. Курганская область, Шадринск ул. Бажова, 28 (69.4 м) - Фото 1
    3-к кв. Курганская область, Шадринск ул. Бажова, 28 (69.4 м) - Фото 2
    3-комнатная квартира, общая площадь 69м², кухня 8м²

    Предлагается к продаже трехкомнатная квартира на первом этаже пятиэтажного дома на конечной нового поселка по улице Бажова. Квартира теплая, комнаты изолированные, раздельный санузел, большая кухня 8,5 кв, общая площадь 69,4 кв. Требуется косметический,...
    • 69 м²
    • 3-ком
    • 1/5 эт.
    • панельный
    3 500 000 Р
    Агент
    +7 (919) Показать номер
    Посмотреть контакты

    Не нашли подходящего объявления?

    Оставьте заявку, и наши риэлторы подберут квартиру в районе Шадринска

    (0)