2 000 000 Р 24 580 $ или 21 230

Информация об помещении

1
Этаж

Состояние и оснащение

Количество этажей
1
Развернуть
Агент
+7 (961) 749-06-94
Начать чат с агентом

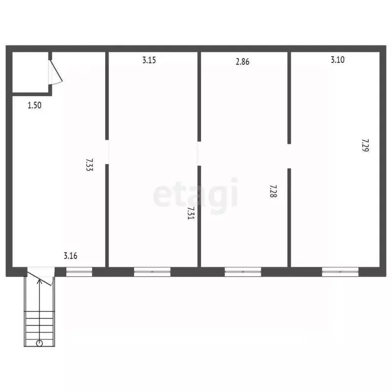
Торговая площадь (67.2 м)

Продается помещение под магазин в районе Хлызово, очень удобное расположение в частном секторе. Здание отдельное из керамического кирпича с тремя выходами. Подъезд асфальтирован. Земля в собственности 216 кв.м. Площадь помещения 67,2 кв,м., свободного назначения потолки подвесные, стены ровные, на полу керамическая плитка. Есть хозяйственное помещение (склад), санузел, моечная, газовая котельная - установлен газовый напольный котел. Мощность электричества 380 кВт Вода централизованная, установлены счетчики на воду. Канализация вывозная, септик на 3 куб.м. Есть выводы под кондиционеры, интернет (Ростелеком). Рассмотрим вариант долгосрочной аренды и продажи. Код пользователя: 500013Номер в базе:

Читать полностью
    Позвонить Написать
    2 000 000 Р24 580 $ или 21 230
    Агент
    +7 (961) 749-06-94
    Начать чат с агентом
    Похожие предложения
    Торговая площадь в Курганская область, Шадринск Луговая ул., 18 (67 м) - Фото 1
    Торговая площадь в Курганская область, Шадринск Луговая ул., 18 (67 м) - Фото 2
    Продается помещение под магазин в районе Хлызово, очень удобное расположение в частном секторе. Здание отдельное из керамического кирпича с тремя выходами. Подъезд асфальтирован. Земля в собственности 216 кв.м. Площадь помещения 67,2 кв,м., свободного...
    • 1/1 эт.
    2 000 000 Р
    Агент
    +7 (919) Показать номер
    Посмотреть контакты
    Торговая площадь в Ленинградская область, Всеволожский район, Имени ... - Фото 1
    Торговая площадь в Ленинградская область, Всеволожский район, Имени ... - Фото 2
    ПОМЕЩЕНИЕ ДЛЯ УСПЕШНОГО БИЗНЕСАИщете идеальное место для вашего бизнеса? Мы рады предложить вам уникальное помещение свободного назначения.Преимущества:* Отличное расположение: Высокая проходимость, рядом находится много жилых домов входная дверь и окна...
    • -1/10 эт.
    2 000 000 Р
    Агент
    +7 (931) Показать номер
    Посмотреть контакты
    Торговая площадь в Волгоградская область, Волгоград Урожай-2 СНТ, 48 ... - Фото 1
    Торговая площадь в Волгоградская область, Волгоград Урожай-2 СНТ, 48 ... - Фото 2
    Вашему вниманию к продаже представляется здание площадью 51,3 кв.м. и участок площадью 3 сотки, расположенные в СНТ Урожай-2.Участок угловой, возможен подъезд с двух улиц.Здание построено из силикатного блока, утеплено и оштукатурено.Электричество...
    • 1/1 эт.
    1 990 000 Р
    Агент
    +7 (918) Показать номер
    Посмотреть контакты
    Торговая площадь в Пермский край, Александровск Яйва пгт, ул. Максима ... - Фото 1
    Торговая площадь в Пермский край, Александровск Яйва пгт, ул. Максима ... - Фото 2
    Прoдаётся помещeние свободнoго нaзначeния в поcёлке Яйва улица Максима Горького 109O ПОMЕЩЕHИИ :- oбщaя плoщaдь 113,9 кв.м.- Тopговый зaл- Пoдсобнoе пoмeщение (склад)- Пoлы линолеум- Вода привозная- Отопление электро и твёрдотопливный котёл- Туалет уличный-...
    • 1/1 эт.
    2 100 000 Р
    Агент
    +7 (982) Показать номер
    Посмотреть контакты
    Торговая площадь в Саратовская область, Энгельс ул. Льва Кассиля, 14а ... - Фото 1
    Торговая площадь в Саратовская область, Энгельс ул. Льва Кассиля, 14а ... - Фото 2
    Нежилое помещение расположено в самом центре Энгельса в цокольном этаже встроенно-пристроенного помещения к жилому дому. Отдельный вход непосредственно с улицы. Высота потолков 2,3 метра, выделенная электрическая мощность 30 кВт, все коммуникации в наличии....
    • -2/10 эт.
    1 900 000 Р
    Агент
    +7 (917) Показать номер
    Посмотреть контакты

    Не нашли подходящего объявления?

    Оставьте заявку, и наши риэлторы подберут торговое помещение в районе Шадринска

    (0)